Let’s Work Together
I am open to architectural and design-related opportunities in Canada, including architectural design, drafting, and design support roles. I am particularly interested in collaborative environments where I can contribute my skills while continuing to grow within the Canadian architecture industry.
See my LinkedIn profile
Download my CV
Get in touch
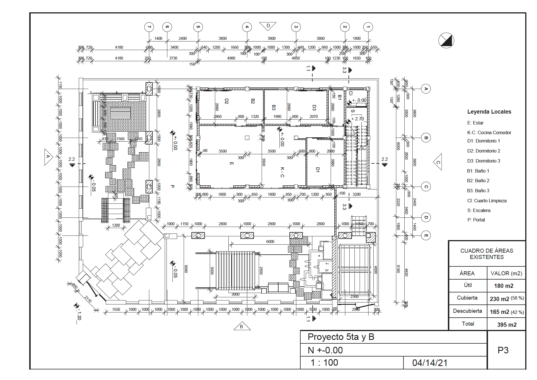
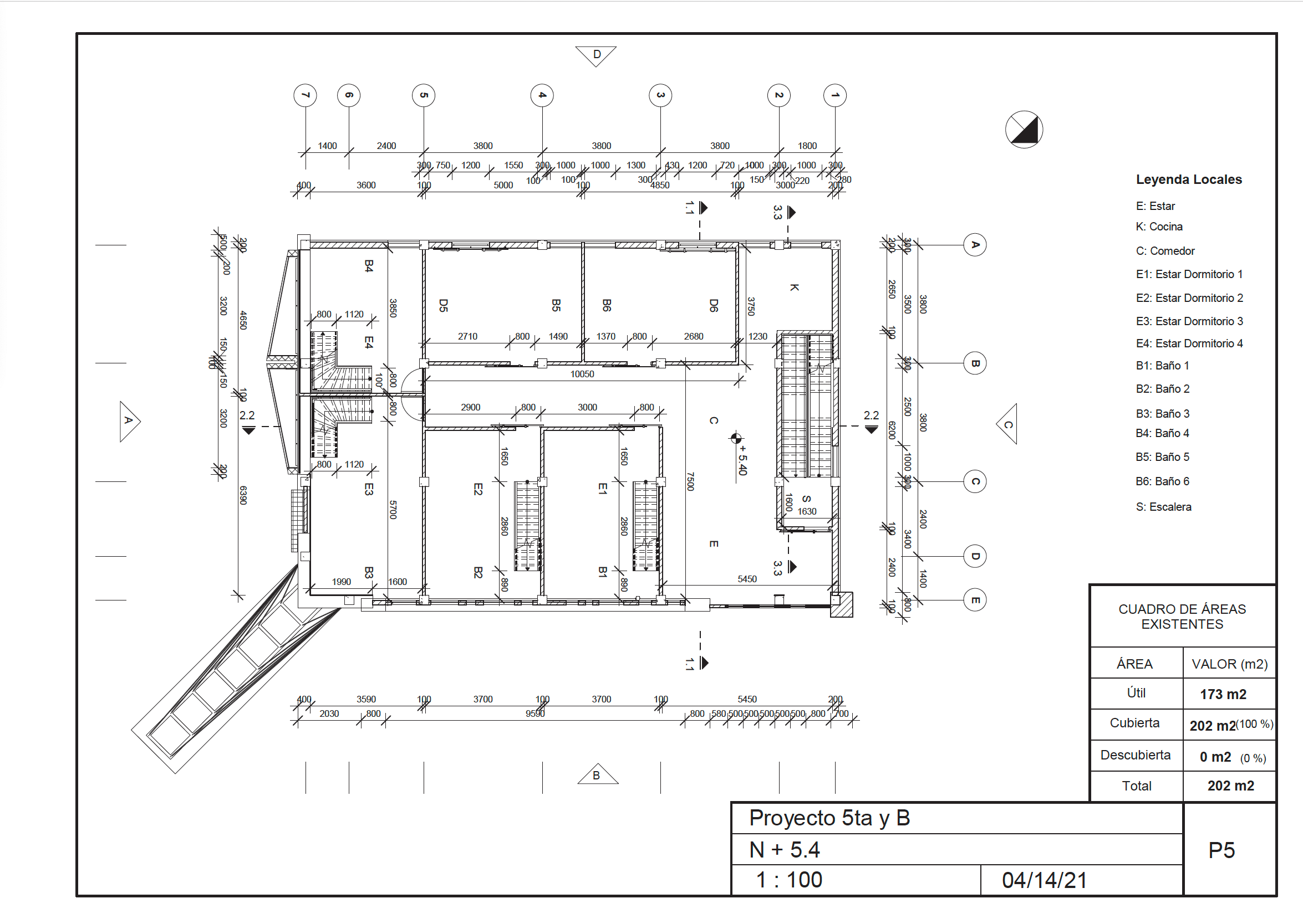
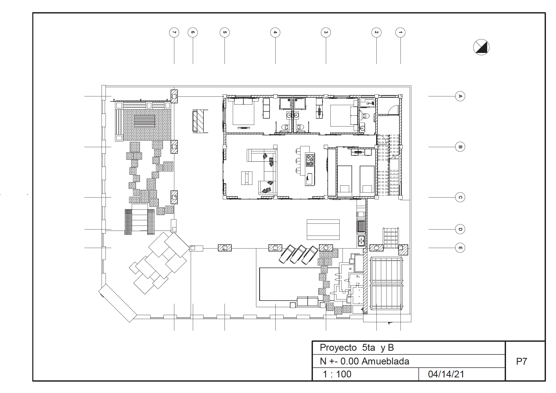
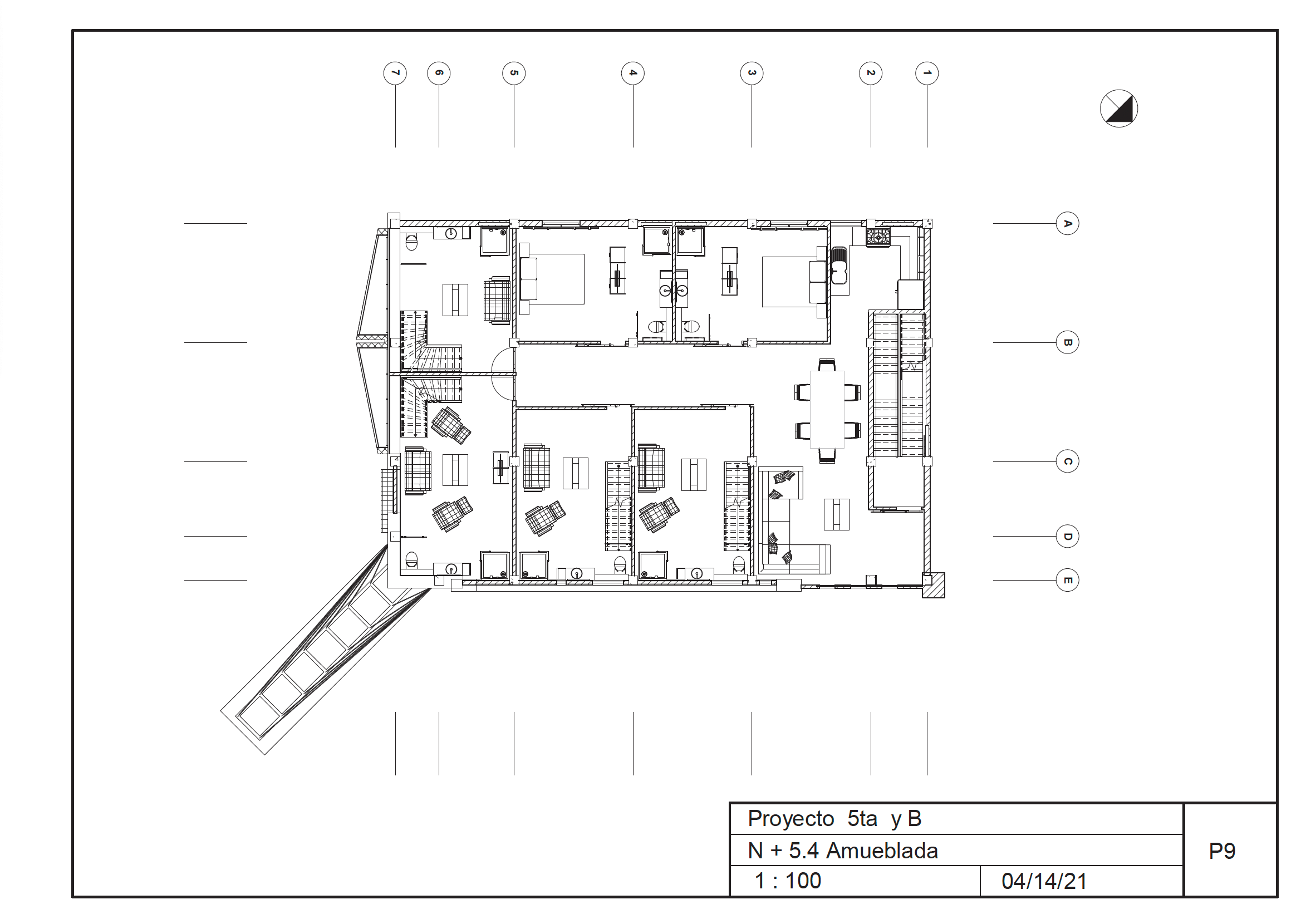
5th & B Residence
Schematic design proposal for a two-story residential building located on a corner lot in Vedado, Havana. The project was conceived as a future hostel, focusing on optimizing interior space distribution while maintaining spatial quality and responding to the surrounding architectural context.
Short Description:
The project was developed for a client seeking to build a residential structure with the potential to operate as a small hostel. The site, located on a corner lot near the coast, presented opportunities for spatial organization and architectural expression.
Project Context:
The design focuses on maximizing room capacity while maintaining spatial quality, incorporating high ceilings and efficient layouts. Special attention was given to the corner condition of the site, enhancing the building’s presence and defining the main access.
Design Concept / Approach:
The proposal optimizes interior distribution to accommodate multiple rooms while ensuring functional circulation and usability. Vertical organization and efficient use of space were key to achieving both residential comfort and future commercial potential.
Spatial Strategy:
The design integrates outdoor areas for recreational use, responding to local urban regulations.
Spatial Strategy:
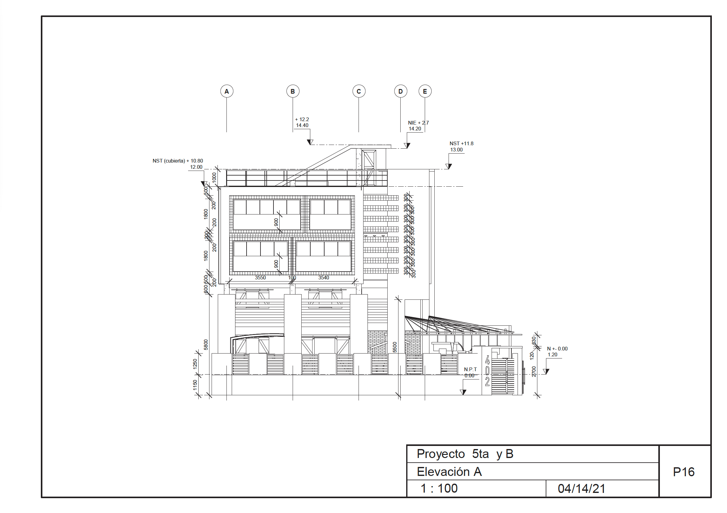
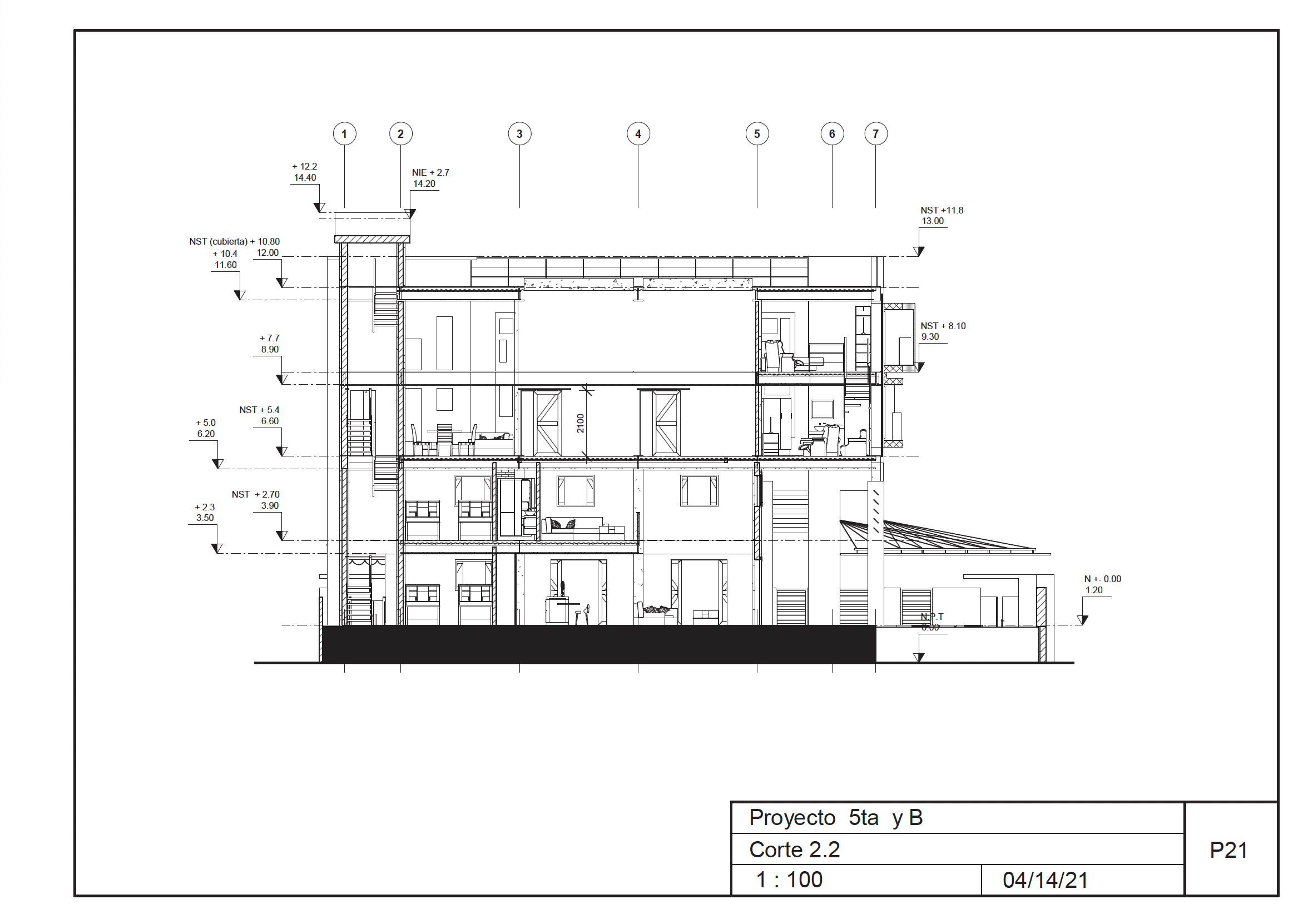
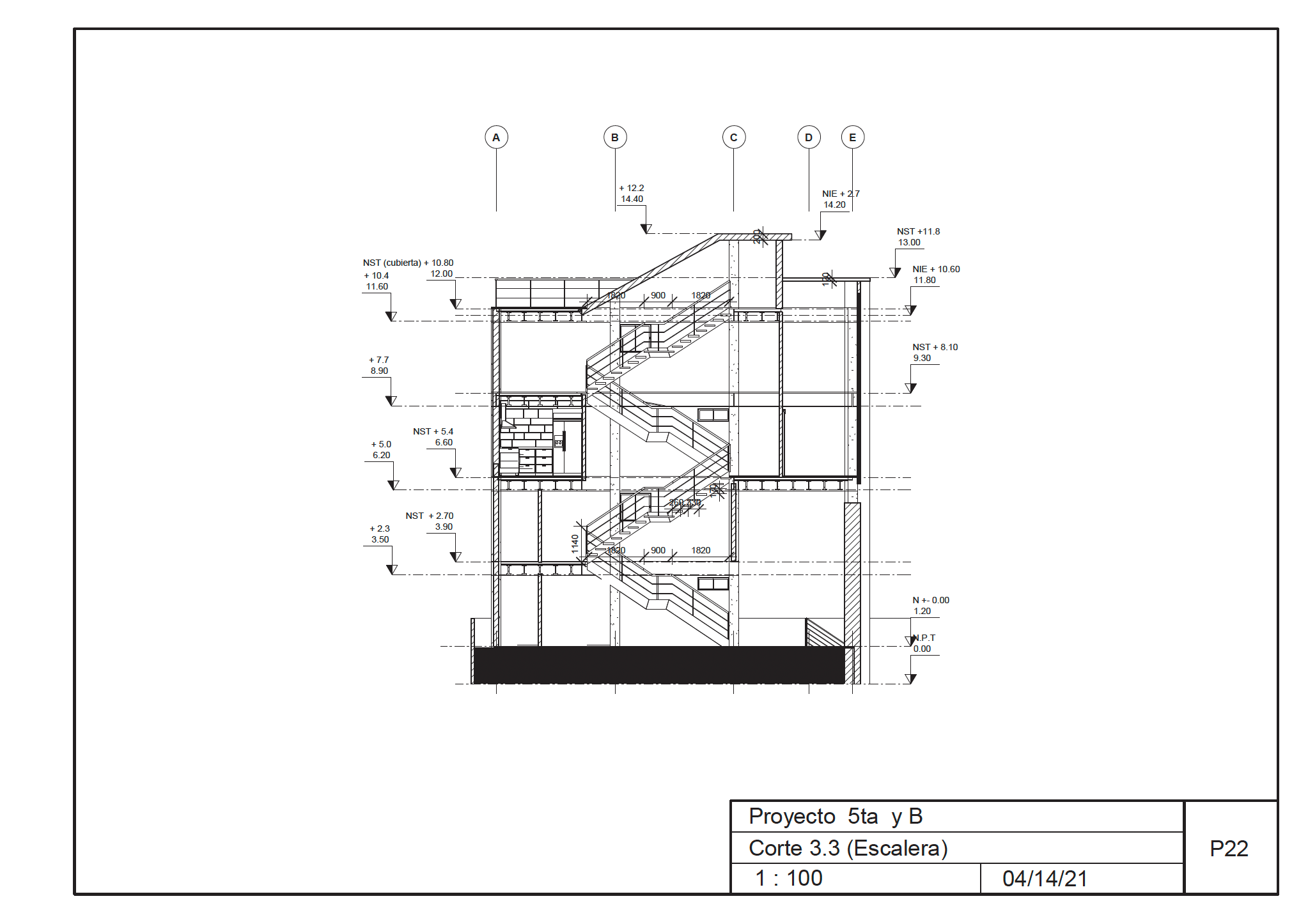
The project incorporates a structural system based on a regular grid of reinforced concrete columns and primary beams, allowing flexibility in spatial organization and future adaptability.
The design responds to the characteristic high ceiling heights of traditional Cuban architecture by introducing duplex units within the same vertical volume. While common areas maintain double-height spaces to enhance spatial quality, private rooms are organized as duplex units to optimize capacity without compromising comfort.
Structural Strategy
My role:
Tools:
Key Focus:
Residential Architecture · Schematic Design
Collaborative team
Jan - Dic 2021
Havana Cuba
Project Type:
Client:
Year:
Location:




Renders




More Renders










Documentation:











Lot located at the corner of B and 5th, Vedado, Havana, Cuba
Starting Point:

5th & B Residence
Portfolio

CONTACT
ABOUT ME
CV
PORTFOLIO
HOME