Let’s Work Together
I am open to architectural and design-related opportunities in Canada, including architectural design, drafting, and design support roles. I am particularly interested in collaborative environments where I can contribute my skills while continuing to grow within the Canadian architecture industry.
See my LinkedIn profile
Download my CV
Get in touch
Adaptive reuse proposal for the transformation of a former industrial facility into a local grocery market. The project focuses on spatial reorganization, functional zoning, and accessibility improvements while preserving the existing structure. The design integrates both indoor retail areas and an outdoor space for complementary commercial activities.
Short Description:
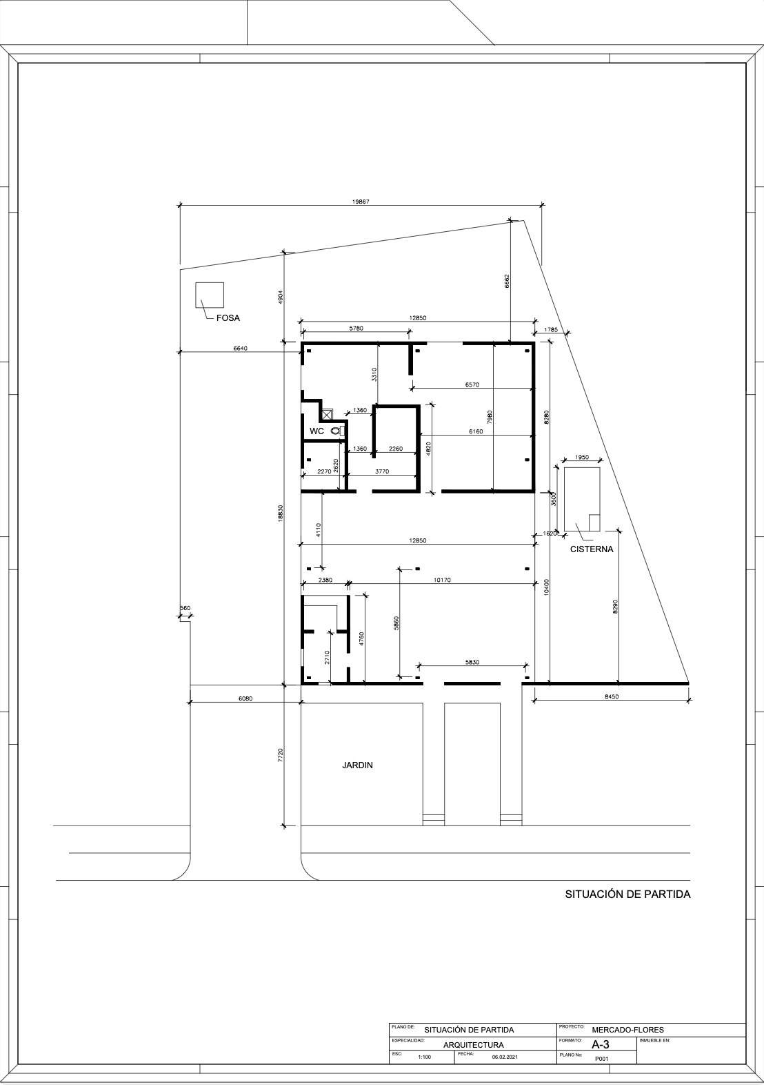
The project was commissioned to transform a disused industrial building located in a residential area into a functional grocery market. The intervention required rethinking the existing space to accommodate new commercial uses while maintaining the original structure.
Project Context:
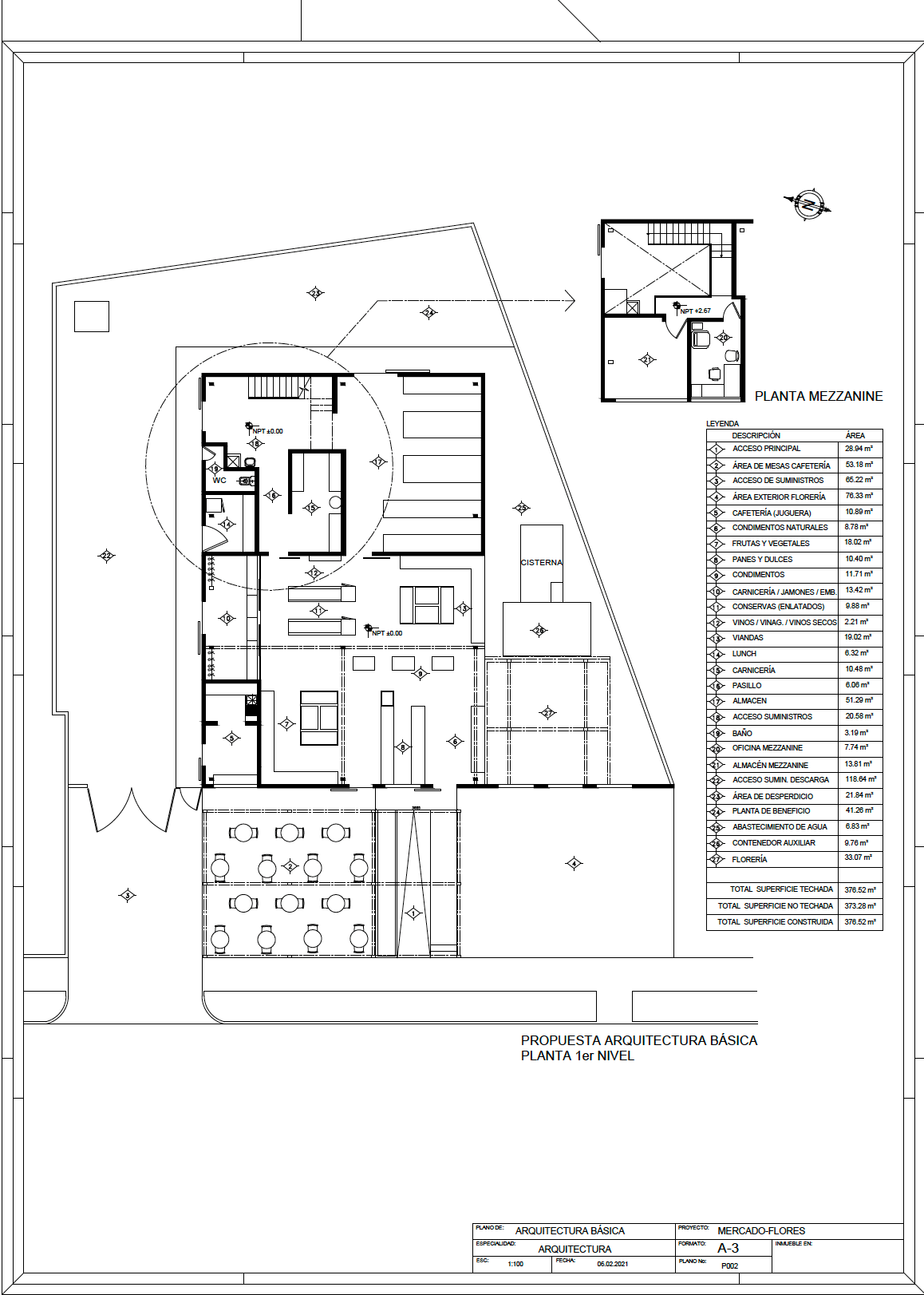
The design approach focused on adapting the existing building to new functional requirements through strategic spatial reorganization, ensuring efficient circulation, accessibility, and usability for both customers and service operations.
Design Concept / Approach:
The proposal defines two main components: an interior space dedicated to the sale of food products and an exterior area designed for complementary uses such as a café and flower sales. The layout was developed to ensure clear circulation paths and efficient organization of commercial activities.
Spatial & Functional Strategy:
The project preserves the existing structural framework while introducing targeted modifications to support the new program. This approach reduces construction impact while maximizing the potential of the existing building.
Adaptive Reuse Strategy:
Special attention was given to improving access for both customers and supply vehicles, ensuring functional efficiency and integration within the surrounding residential context.
Adaptive Reuse Strategy:
My role:
Tools:
Key Focus:
Grocery Market
Commercial Architecture · Adaptive Reuse
Collaborative team
Feb 2021
Havana Cuba
Project Type:
Client:
Year:
Location:




Renders




Documentation:


Grocery Market
Portfolio

CONTACT
CV
ABOUT ME
PORTFOLIO
HOME