Let’s Work Together
I am open to architectural and design-related opportunities in Canada, including architectural design, drafting, and design support roles. I am particularly interested in collaborative environments where I can contribute my skills while continuing to grow within the Canadian architecture industry.
See my LinkedIn profile
Download my CV
Get in touch
Schematic design proposal for a small coffee shop developed on a compact and irregular urban lot. The project focuses on organizing production areas, outdoor seating, and customer services within limited space conditions. The design prioritizes efficient circulation and the integration of indoor and outdoor functions in a dense urban context.
Short Description:
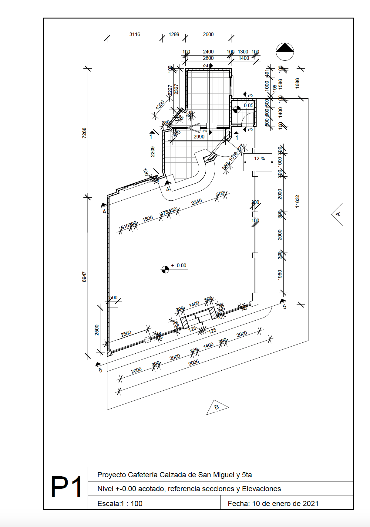
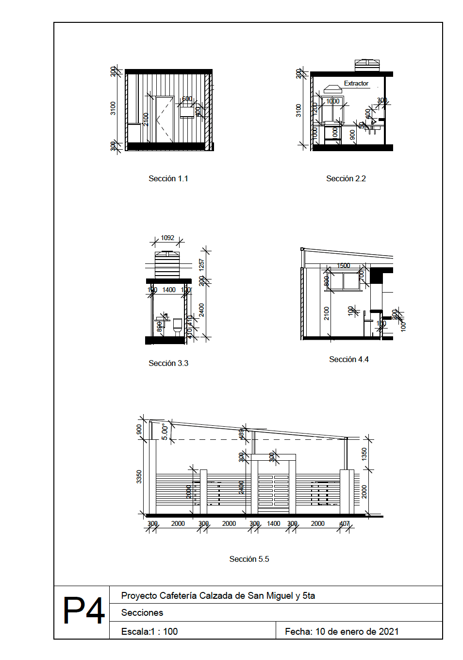
The project involved the transformation of a small urban lot into a functional coffee shop. The site presented irregular dimensions and limited space, requiring careful organization of both service and customer areas.
Project Context:
The design approach focused on maximizing the usability of the available space through a compact and efficient layout, balancing production, service, and customer experience within a constrained footprint.
Design Concept / Approach:
The proposal organizes the space into clearly defined zones, including production areas, customer seating, and essential services. Outdoor space was integrated as a key component of the project, extending the usable area and enhancing the overall experience.
Spatial Strategy:
The irregular geometry of the lot and its location within a dense urban fabric required adaptable design solutions to ensure functional efficiency and spatial clarity.
Site Constraints:
My role:
Tools:
Key Focus:
Local Coffee Shop
Commercial Architecture · Independent Project
Individual
Jan - Feb 2021
Havana, Cuba
Project Type:
Client:
Year:
Location:




Renders
Review the video of walkthroughs and flythroughs.




Lot located at the corner of Calzada de San Miguel and 5th, Havana, Cuba
Starting Point:
More Renders


Documentation:





Portfolio
Local Coffee Shop

CONTACT
PORTFOLIO
ABOUT ME
CV
HOME