Let’s Work Together
I am open to architectural and design-related opportunities in Canada, including architectural design, drafting, and design support roles. I am particularly interested in collaborative environments where I can contribute my skills while continuing to grow within the Canadian architecture industry.
See my LinkedIn profile
Download my CV
Get in touch
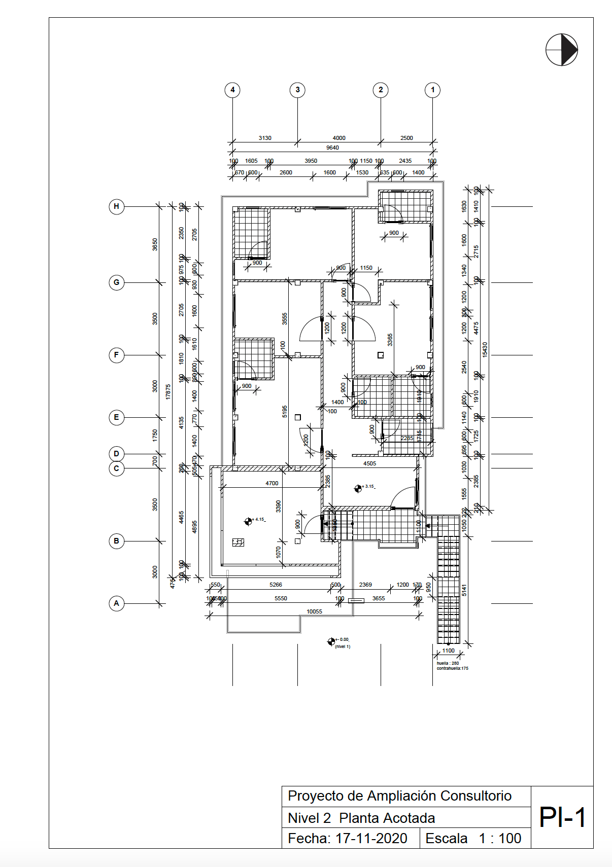
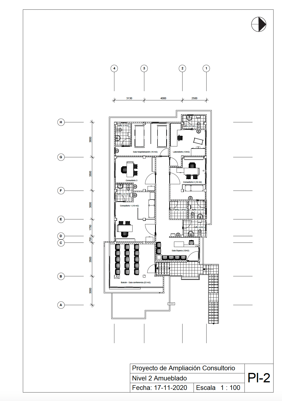
Schematic design proposal for a small medical clinic developed on the rooftop of an existing residential building. The project focuses on optimizing spatial layout, circulation, and structural feasibility within a constrained footprint. Special attention was given to patient flow, privacy, and the integration of medical spaces within pre-existing conditions.
Short Description:
The project was commissioned by a medical professional seeking an initial design proposal for a clinic to be developed on the rooftop of an existing residence. The main challenge was to accommodate all required medical functions while preserving the structural integrity of the building.
Project Context:
The design approach focused on maximizing spatial efficiency within a limited footprint, organizing medical functions through a compact and logical layout. Circulation areas were minimized to prioritize usable space within consultation rooms and service areas.
Design Concept / Approach:
The proposal emphasizes clear zoning between public, semi-private, and private areas, ensuring efficient patient flow while maintaining privacy and operational functionality. The layout was developed to support both medical use and practical day-to-day operation.
Spatial & Functional Strategy:
Special consideration was given to structural constraints, ensuring that the proposed intervention could be integrated within the existing building without compromising its stability. The design also accounts for basic service requirements and spatial feasibility.
Technical Considerations:
My role:
Tools:




Key Focus:
Medical Clinic
Healthcare Architecture · Independent Project
Individual
Oct - Nov 2020
Ecuador
Project Type:
Client:
Year:
Location:
Renders
Review the video of walkthroughs and flythroughs.



Rooftop of Client’s existing residence
Starting Point:




More Renders







Documentation:







Portfolio
Medical Clinic

CONTACT
ABOUT ME
CV
PORTFOLIO
HOME